联系我们
24小时服务热线:
158-5106-6698
公司电话:0515-88404040
公司传真:0515-88410418
客服QQ:348083717
邮箱:348083717@qq.com
地址:盐城市城南新区新都街道中南世纪城一期2B2-414--417室
昌都地铁堵漏、隧道防水施工工艺及流程的图文详解-2023年靠谱堵漏公司
发布时间:2023-05-16
来源:涌达建工 浏览次数:20273
港珠澳大桥岛隧工程是目前世界范围内综合难度和规模最大的隧道工程,该工程于2011年1月正式开工,西人工岛长度为625m,最宽处190m,面积9.7万平方米。外包防水设计为喷涂聚脲防水涂料,该材料特点:附着力好、高强度、高弹性,连续无接缝,而且具有良好的耐磨性、耐化学腐蚀性和耐老化性,使用喷涂聚脲防水涂料作防腐、防水层是提高桥梁结构耐久性的重要手段。
一、隧道工程外包防水范围及构造层次
喷涂聚脲防水涂料范围为所有+5.5m标高以下的结构(不包括+5.5m板顶面)迎水面,包括外侧墙表面、+4m标高板顶面等。详见图1、图2。
图2 +5.5m标高截面防水构造图
二、施工工艺
施工流程:基层处理→基层修补→底涂施工→聚脲喷涂→特殊部位处理→聚脲涂层修补
操作要点
1、基层处理
使用角磨机将所有需要喷涂的基面打磨并除尘,彻底去除表面的浮浆、起皮、疏松和杂质等结合薄弱的物质,使基层获得合适的粗糙度,增强喷涂聚脲涂层与基层的粘结强度。对于局部油污,可用丙酮或酒精清洗。
2、基层修补
根据现场实际情况,混凝土基面打磨后针孔全面分布较多,无法采用局部修补的办法,只能采用全面批刮修补腻子封孔来满足聚脲喷涂质量要求需要,全面批刮修补腻子目的是封填针孔及找平。
1) 采用环氧类聚脲配套修补腻子,按厂家设定配比(配比为:A:B:石英砂和水泥=4:1:适量的石英砂和水泥) 搅拌均匀,根据基面实际缺陷程度大小,加入适量的石英砂和水泥做填料对混凝土基面封填刮涂,刮涂涂层时不宜流挂及过厚,只需把针孔封填严实就好。如全面批刮修补腻子后仍有大量针孔,需重复批刮或局部修补。
2) 基面基本达到要求时,修补腻子完全固化后,使用角磨机轻度打磨修补后的基面去除浮浆及灰尘。
3) 轻度打磨后发现基面仍有较明显的针孔,仍需局部采用修补腻子修补针孔,至基面达到喷涂聚脲要求(基面最终只允许有少许细小针眼,但不允许有大的孔洞及缺陷)
4) 根据现场气温等气候条件,最后一次修补腻子完全固化后(一般为24小时后),可进行配套底涂施工。
3、底涂施工
底涂材料采用赛力克公司生产的高固含聚氨酯配套底涂,按厂家设定配比(配比为:A:B=3.5:1) 搅拌均匀滚涂或涂刷,大面积施工采用辊涂或机械喷涂工艺,边角沟槽辅以涂刷。要求涂布均匀,无漏涂、无堆积。现场作业时,应做好合格基层的保护,防止二次污染。底涂彻底干后可以喷涂聚脲(一般为6-24小时)。
4、喷涂聚脲弹性体防水涂料
1) 最后一次检查修补腻子或底涂后的基面是否符合喷涂聚脲要求,如不符合继续修补,如符合时做好材料及设备准备,待喷。
2) 现场施工操作人员作好劳动安全保护。喷涂作业工人配备必要的劳保用品。包括工作服、护目镜、防护面具、口罩、手套、安全鞋、急救箱等。
3) 正式开始喷涂前,先用塑料布将喷涂区域以外的区域进行遮挡,并按设计要求预先做好工程细部构造处理,再进行大面积喷涂,施工现场应保持良好通风。
4) 聚脲涂料由甲组(A组)和乙组(B组)两种组份组成。聚脲防水涂料喷涂施工前,检查A、B两组份物料是否正常,使用时将B料用气动搅拌器进行充分搅拌,并使之均匀,施工过程中保持连续搅拌。喷涂设备由专业人员管理和操作,根据材料特性、施工现场条件等适时调整设备各项参数,确保涂层喷涂质量。严禁现场向涂料中添加任何稀释剂,严禁混淆A、B组分进料系统。
5) 喷涂作业时,操作员手持喷枪喷涂施工,喷枪宜垂直于待喷基层,距离适中,移动速度均匀;喷涂顺序为先难后易、先上后下,纵横交叉喷涂至设计要求的厚度,应连续作业,一般人工喷涂2遍能达到1.5厚。喷涂作业时,如发现异常情况,应立即停止作业,检查并排除故障后方可继续施工。
6) 桶内涂料每次应尽量用完,如喷涂作业结束后桶内尚有余料,且下次喷涂间隔超过24h时,应向A料桶内充氮气或干燥空气密封保存。
5、特殊部位处理
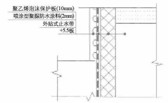
1) 变形缝处防水
变形缝处设置了外贴式止水带,将止水带两侧混凝土打磨,使止水带与混凝土表面相平,环氧砂浆填充缝隙并打磨平整,人工清理止水带上浮浆、油污等,必要时使用丙酮或酒精等有机溶剂冲洗,使止水带表面干净无污染。变形缝止水带l00cm宽范围聚脲涂层需加厚至2mm在喷涂到此部位时,比大面积多喷一遍从而达到设计厚度。
(图:变形缝处外贴式止水带聚脲涂层构造)
2) 阴阳角处聚脲涂层构造
阴角处平、立面各30cm范围内聚脲涂层厚度为2mm,阳角处平、立面各20cm范围内聚脲涂层厚度为2mm。
(图:阴阳角处聚脲图层构造)
3) 收头处防水
顶部收头至+5.5板顶边缘(非变形缝处涂层不需加厚),需设置低模量聚氨酯密封胶封边;底部收头需至底板倒角下口。
(图:变形缝收头处聚脲涂层构造)
(图:底部收头处聚脲图层构造)
4) 变形缝顶部及底部
都需在收头处设置低模量聚氨酯密封胶封边,底部收头只需至底板倒角上口。变形缝底部收头处聚脲涂层构造见图。
(图:变形缝收头处聚脲涂层构造)
5) 侧墙顶部
回填土面以上,+5.5m标高以下部分,聚脲涂层需加厚至2mm,并需设置聚乙烯泡沫保护板,厚度l0mm。
(图:侧墙顶部回填土面处构造图)
6) 搭接施工
喷涂聚脲防水涂层两次施工间隔在6小时以上,需要搭接连成一体的部位,在第一次施工时应预留出15~20cm的操作面同后续防水层进行可靠的搭接。施工后续防水层前,应对已施工的防水层边缘15cm宽度范围内的涂层表面进行清洁处理,保证原有防水层表面清洁、干燥、无油污及其他污染物。采用高固含聚氨酯搭接底涂,对原有防水层表面15cm范围内做预处理,在4~24小时之内喷涂后续防水层,后续防水层与原有防水层搭接宽度至少l0cm。
6、聚脲涂层修补
当喷涂聚脲完成一个面的施工时,必须及时检查,如发现有针孔时及时采用少量手刮聚脲材料按比例用手工快速调制封堵针孔。
如果在喷涂过程中出现小于250cm2的鼓包,修补涂层时,先剔除鼓包,清除损伤及粘结不牢的涂层,并将缺陷部位边缘100mm范围内的涂层及基层打毛清理干净,涂高固含聚氨酯配套底涂。底涂固化后,采用少量手刮聚脲材料按比例用手工修补至设计厚度。
对于大于250cm的鼓包及破损处,应剔除至混凝土基层,重新刮涂基层处理剂、按设计要求厚度喷涂聚脲涂层,喷涂聚脲涂层之前应采用高固含聚氨酯配套底涂对原有防水层表面进行处理。 防止重新喷涂的涂层与原聚脲涂层界面粘结不牢而产生分层。
声明:本网站发布的内容(图片、视频和文字)以原创、转载和分享网络内容为主,如果涉及侵权请尽快告知,我们将会在第一时间删除。文章观点不代表本网站立场,如需处理请联系客服。电话:158-5106-6698,185-5154-0999;邮箱:348083717@qq.com。

扫描添加好友
免费提供:防水堵漏施工方案

扫描二维码
访问涌达防水堵漏公司手机端
已帮助
20273人
20273人
您的鼓励是作者最大的动力
相关推荐
- 昌都地铁防水堵漏施工技术要点【涌达建工堵漏公司分享】
- 昌都地铁渗漏水原因_地铁防水施工原则_地铁防水施工的主要技术\渗漏治理
- 昌都地铁防水堵漏是难点!隧道工程施工的难点技术对策-涌达建工堵漏公司
- 昌都20年耕耘_地铁隧道渗漏水治理方案_施工缝漏水处理方法介绍【精华】
- 昌都推荐_堵漏公司工程施工_经验丰富!地铁施工堵漏技术总结
- 昌都地铁堵漏、隧道防水施工工艺及流程的图文详解-2023年靠谱堵漏公司
- 昌都地铁防水补漏施工【涌达建工堵漏公司】隧洞衬砌缺陷及修补方案分享
- 昌都注浆技术在地下结构防渗等方面起着重要的作用【地铁隧道堵漏】
- 昌都用防水注浆堵漏技术是消除地铁隧道渗漏的有效方法
- 昌都【2023】地铁堵漏、隧道防水堵漏的施工方案及方法
- 昌都地铁注浆堵漏分析:不同渗漏情况堵漏方法介绍
- 昌都2023年地铁隧道渗漏水的应对措施_涌达建工公司说四点
